Casa Sibiu

Casă în Stil Tradițional cu Tehnologie Modernă , Sibiu- 190 mp construiți

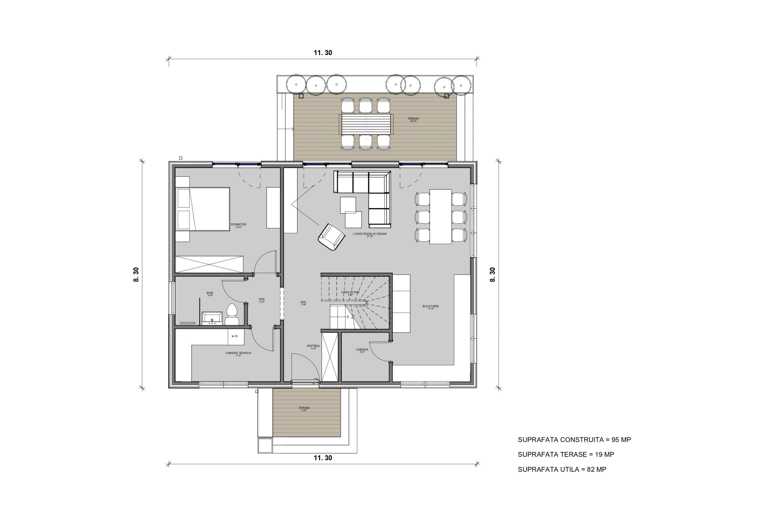
Aceasta casă modernă situată în Sibiu, cu o suprafață construită desfășurată de 190 mp, respectă stilul tradițional al zonei, reinterpretat într-o manieră modernă. Construcția are un regim de înălțime parter și un etaj și este realizată dintr-o structură metalică ușoară, ceea ce îi conferă durabilitate și flexibilitate în design. Fațada casei este placată cu cărămidă aparentă, păstrând astfel legătura estetică cu arhitectura tradițională a zonei, iar acoperișul în două ape este acoperit cu țiglă metalică.

Ferestrele înalte permit pătrunderea luminii naturale, iar o pergolă metalică adaugă un accent modern și funcțional terasei de la parter, care este conectată direct cu spațiul exterior, creând un mediu ideal pentru relaxare în natură.

La parter, casa dispune de o zonă de zi generoasă, care include un living, un loc de luat masa și o bucătărie deschisă, dar care poate fi separat printr-un perete de sticlă sau o structură ușoară, pentru mai multă intimitate. Tot la parter se găsește un dormitor de oaspeți, o baie și o cameră tehnică.

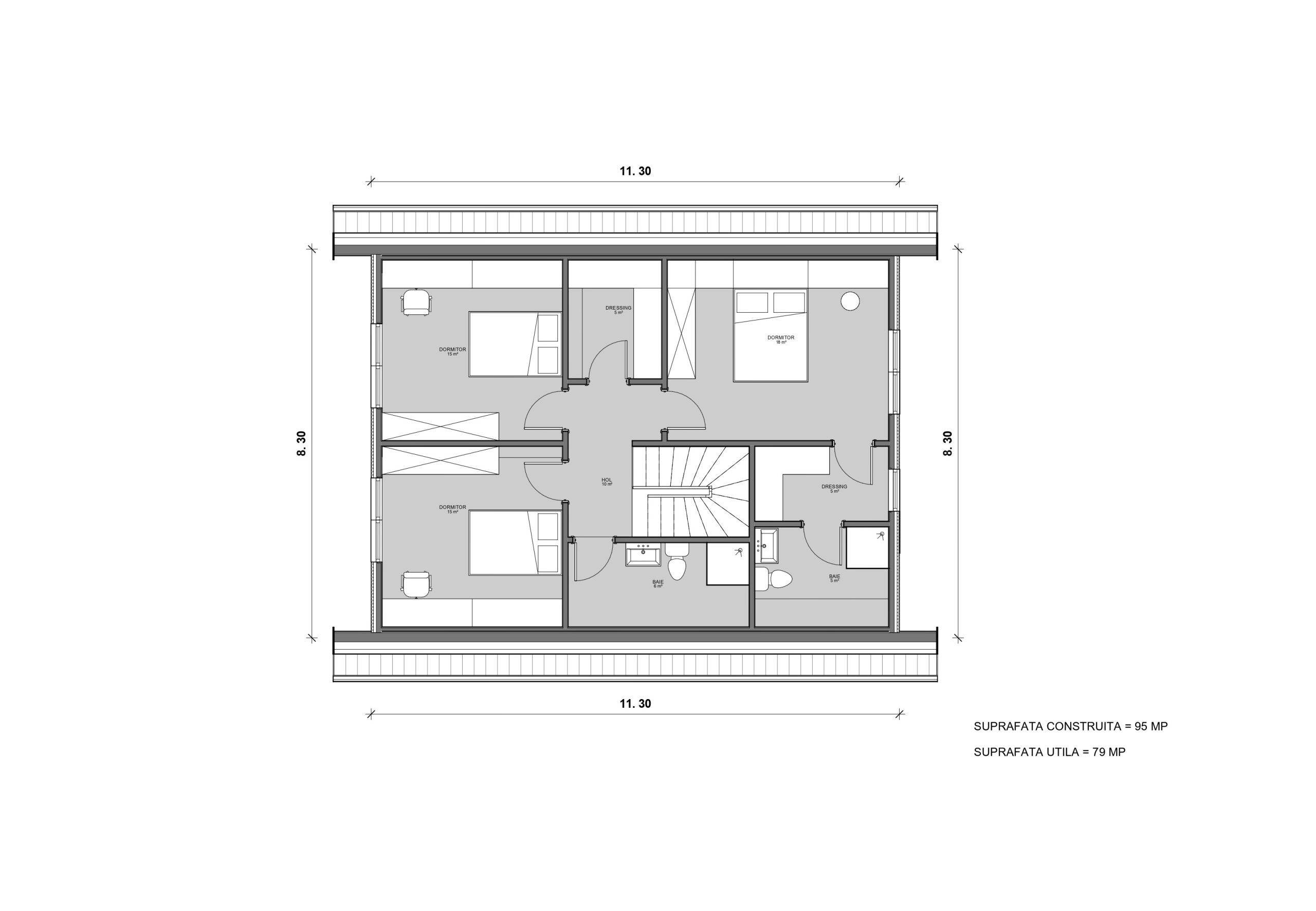
Etajul este dedicat zonei de noapte, având două dormitoare cu o baie comună, alături de un dormitor matrimonial cu dressing și baie proprie.

Acest design armonios îmbină tradiționalul cu modernul, făcând din această casă din Sibiu o locuință confortabilă și funcțională, perfect adaptată stilului de viață contemporan, dar cu respect pentru tradițiile arhitecturale locale.

Vrei sa lucram impreuna?
Contacteaza-ne

ARHON ARHITECTURA

Povestea incepe cu noi

Pe primul loc sunt oamenii. Proiectam intotdeauna cu beneficiarii nostri si transformam ideile lor in realitate. Realizam proiecte in toata tara si in strainatate.

Contact

Ne puteti contacta telefonic sau pe e-mail:

Luni - Vineri 9.00 — 17.00

e-mail: arhonarhitectura@gmail.com

Bucuresti, Sector 3, B-dul. Burebista nr. 1

Scroll to Top