Casa unifamiliala Vidra

Casă modernă – Parter+Etaj

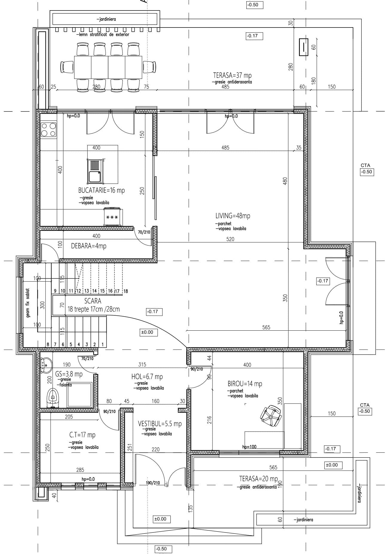
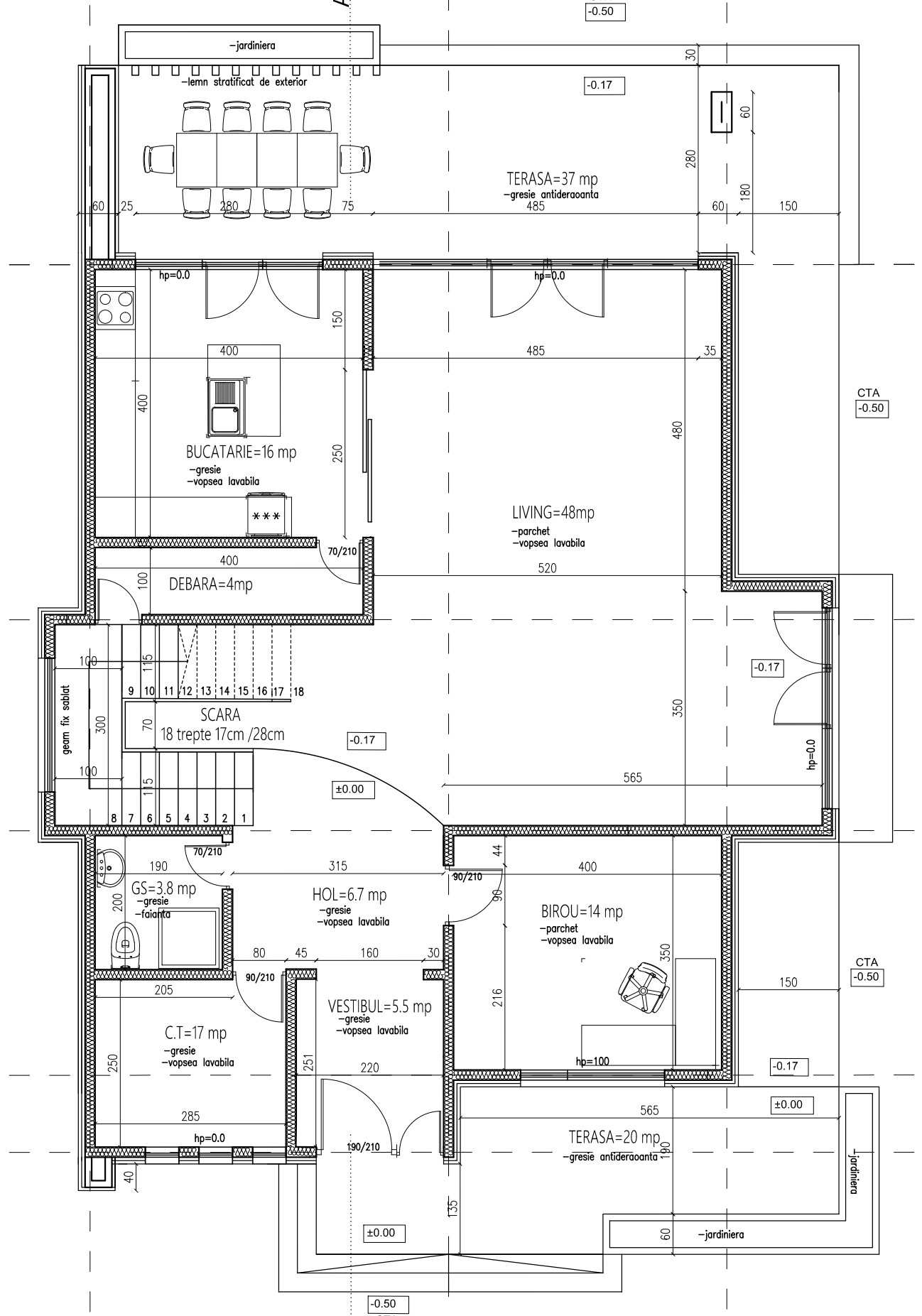
Această casă modernă cu regim de înălțime parter și etaj impresionează prin designul contemporan și accentul pus pe funcționalitate și eficiență energetică. La parter, se regăsesc un living room spațios cu loc de luat masa, o bucătărie deschisă, o cameră tehnică, un birou și o baie, toate concepute pentru a maximiza confortul și utilizarea eficientă a spațiului. La etaj, casa dispune de două dormitoare generoase, fiecare dotat cu baie proprie și dressing, oferind intimitate și confort sporit. Ferestrele înalte asigură o iluminare naturală optimă, creând o legătură armonioasă cu exteriorul. Fațada este placată cu riflaje din lemn și include balcoane ample, integrate perfect în peisajul natural. Realizată pe o structură in cadre, această locuință sustenabilă utilizează materiale de construcție moderne, contribuind la o amprentă de carbon redusă.

Vrei sa lucram impreuna?
Contacteaza-ne

ARHON ARHITECTURA

Povestea incepe cu noi

Pe primul loc sunt oamenii. Proiectam intotdeauna cu beneficiarii nostri si transformam ideile lor in realitate. Realizam proiecte in toata tara si in strainatate.

Contact

Ne puteti contacta telefonic sau pe e-mail:

Luni - Vineri 9.00 — 17.00

e-mail: arhonarhitectura@gmail.com

Bucuresti, Sector 3, B-dul. Burebista nr. 1

Scroll to Top