Locuinte unifamiliale Cluj

Case moderne cubice, 176 mp, Cluj

Cele două case moderne sunt proiectate într-un stil arhitectural cubist, cu regim de înălțime parter și etaj, și o suprafață construită desfășurată de 176 mp fiecare. Arhitectura minimalistă a locuințelor se remarcă prin linii clare și fațadele elegante, accentuate de placări cu riflaje din lemn, care adaugă o notă caldă și naturală designului modern.

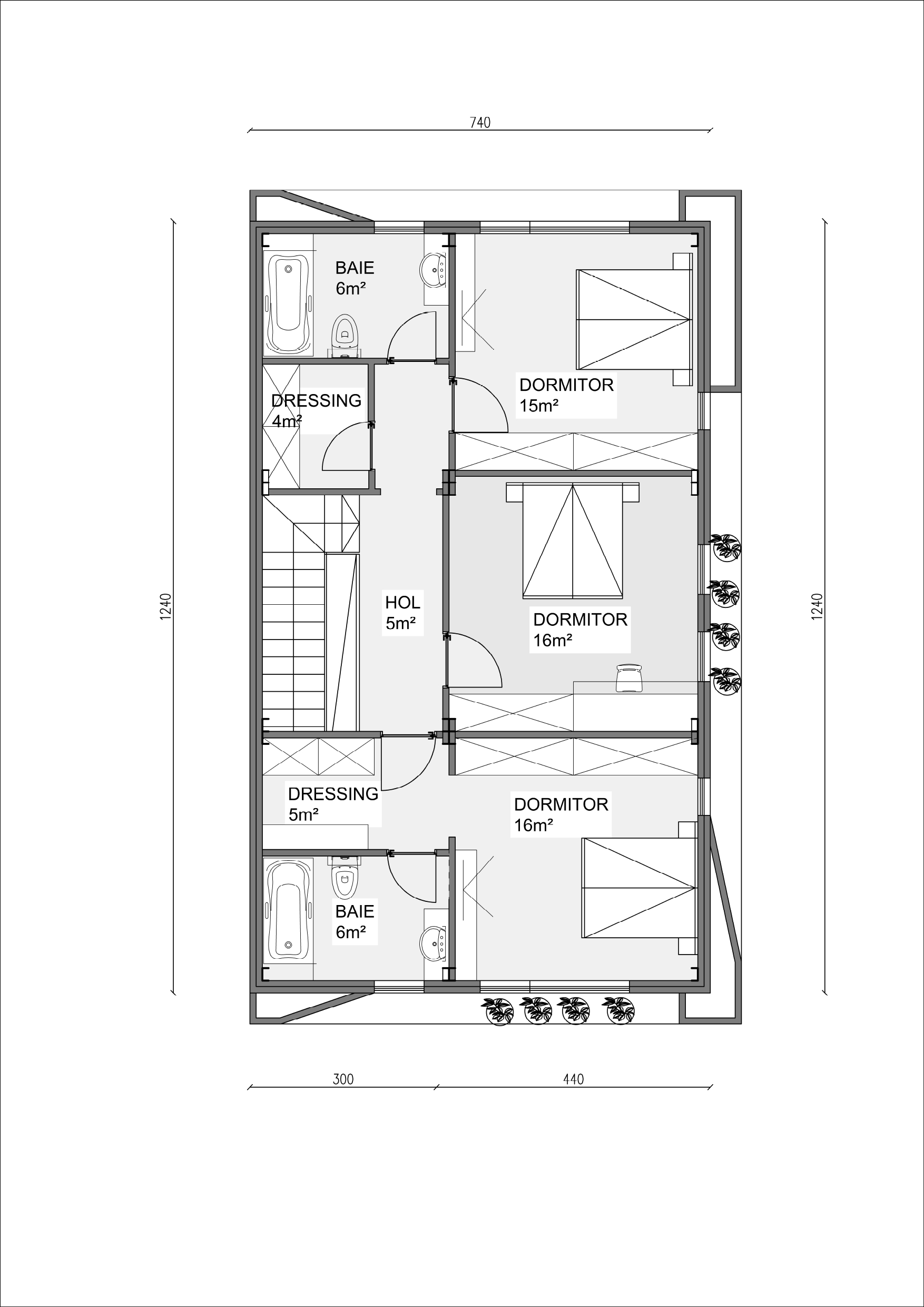
Compartimentarea spațiului interior: Parterul fiecărei case este dedicat zonei de zi și include un living spațios, cu loc de luat masa și bucătărie deschisă, o cameră tehnică, o baie și un dormitor suplimentar, ce poate funcționa ca birou sau cameră de oaspeți. La etaj, zona de noapte este compartimentată eficient, cu două dormitoare ce împart o baie comună și un dressing generos, alături de un dormitor matrimonial, dotat cu baie și dressing propriu, pentru un plus de confort și intimitate.

Design exterior și amenajare peisagistică: Ferestrele înalte, de la podea până la tavan, permit o iluminare naturală optimă în toate încăperile, conectând spațiile interioare cu peisajul exterior. Acoperișul tip terasă adaugă un aer contemporan construcției, fiind și o caracteristică specifică stilului cubist. Grădinile sunt amenajate cu atenție, cu o abundență de vegetație și plante decorative, integrând locuințele în peisajul natural.

Amplasament: Cele două case sunt situate în apropierea orașului Cluj, într-o zonă liniștită, cu multă verdeață, ce oferă un mediu de viață sănătos și relaxant, ideal pentru familii. Acest complex de case cubice moderne aduce un echilibru între confortul urban și liniștea naturii, fiind perfect adaptat cerințelor de locuire contemporană.

Vrei sa lucram impreuna?
Contacteaza-ne

ARHON ARHITECTURA

Povestea incepe cu noi

Pe primul loc sunt oamenii. Proiectam intotdeauna cu beneficiarii nostri si transformam ideile lor in realitate. Realizam proiecte in toata tara si in strainatate.

Contact

Ne puteti contacta telefonic sau pe e-mail:

Luni - Vineri 9.00 — 17.00

e-mail: arhonarhitectura@gmail.com

Bucuresti, Sector 3, B-dul. Burebista nr. 1

Scroll to Top