Showroom si depozitare Saftica

Hală metalică cu showroom și birouri – Săftica

 

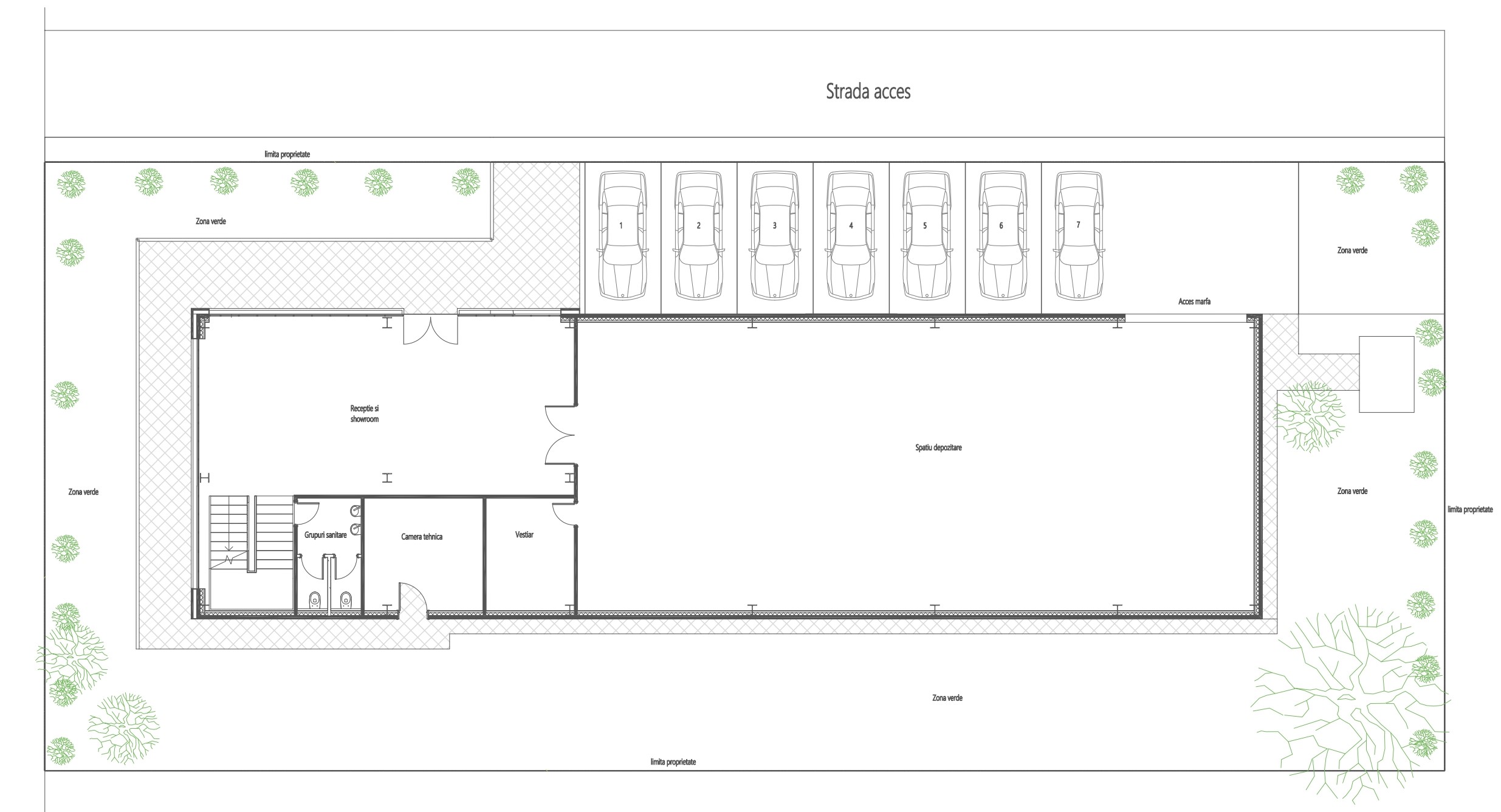
Această hală metalică multifuncțională este un proiect de arhitectură industrială dezvoltat pentru activități logistice, comerciale și administrative, amplasat în zona Săftica, în proximitatea Bucureștiului. Construcția integrează spații de depozitare, zonă de prezentare (showroom), și birouri administrative într-un volum coerent, cu expresie contemporană și imagine profesională puternică.

Cu o suprafață construită de 500 mp și o suprafață desfășurată de 590 mp, aceasta oferă un spațiu de depozitare generos de 350 mp și un spațiu dedicat pentru birouri și prezentare de 240 mp.

Organizarea funcțională permite separarea clară a fluxurilor: acces logistic pentru depozit, respectiv acces reprezentativ pentru zona de birouri și showroom. Această zonare eficientă susține atât activitatea operațională, cât și interacțiunea cu clienții.

Construcția a fost realizată de o firmă specializată în structuri metalice și hale industriale, asigurând o execuție de calitate și respectarea celor mai înalte standarde.

Vrei sa lucram impreuna?
Contacteaza-ne

ARHON ARHITECTURA

Povestea incepe cu noi

Pe primul loc sunt oamenii. Proiectam intotdeauna cu beneficiarii nostri si transformam ideile lor in realitate. Realizam proiecte in toata tara si in strainatate.

Contact

Ne puteti contacta telefonic sau pe e-mail:

Luni - Vineri 9.00 — 17.00

e-mail: arhonarhitectura@gmail.com

Bucuresti, Sector 3, B-dul. Burebista nr. 1

Scroll to Top