Water Residence

Ansamblu Rezidențial Sustenabil în Cologne, Germania – 35 de Apartamente Moderne

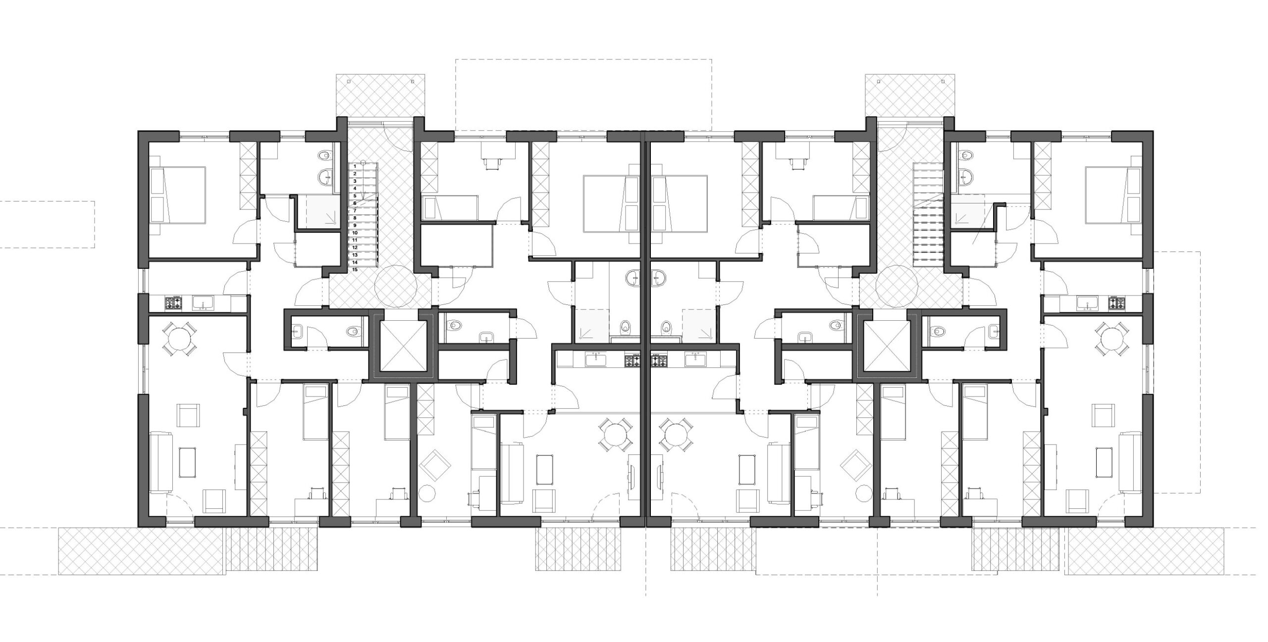
Amplasat într-o zonă rezidențială liniștită din suburbiile orașului Cologne, Germania, acest ansamblu de locuințe colective se integrează armonios în peisajul înconjurător. Proiectul, compus din două blocuri cu două etaje și un total de 35 de apartamente, respectă arhitectura locală și se adaptează perfect caracteristicilor zonale, păstrând un regim de înălțime redus și un aspect care reflectă autenticitatea clădirilor din jur.

Arhitecții au acordat o atenție deosebită detaliilor locale, integrând elemente tradiționale precum placările fațadelor cu cărămidă aparentă de culoare naturală, spații plantate din abundență și ferestre înalte care asigură o iluminare naturală amplă. Aceste clădiri sustenabile și ecologice sunt proiectate pentru a crea o conexiune permanentă cu natura, având grădini interioare cu zone de relaxare, balcoane spațioase și ferestre din pardoseală până în tavan. Fațadele verzi îmbunătățesc confortul și aspectul estetic, oferind beneficii multiple, cum ar fi reducerea emisiilor de gaze cu efect de seră, îmbunătățirea calității aerului, reducerea zgomotului și creșterea biodiversității.

Pentru confortul locatarilor și o viață suburbană liniștită, proiectul include dotări moderne, cum ar fi două locuri de joacă pentru copii, spații de interacțiune pentru comunitate și zone verzi extinse în jurul clădirilor. Cele două blocuri sunt prevăzute cu locuri de parcare exterioare acoperite, oferind locatarilor acces facil și confortabil.

Din punct de vedere structural, clădirile sunt realizate pe cadre din beton armat, cu stâlpi și grinzi solide. Fiecare bloc dispune de două scări interioare și două ascensoare, facilitând accesul la etajele superioare și adaptându-se inclusiv pentru persoanele cu dizabilități. Subsolul parțial este dedicat spațiilor de depozitare pentru 18 apartamente și spațiilor tehnice necesare întreținerii.

Proiectarea și realizarea blocurilor au respectat toate normele legislației germane în vigoare, iar arhitecții noștri au colaborat îndeaproape cu o firmă locală de proiectare din Germania pentru a asigura o execuție conform standardelor.

Vrei sa lucram impreuna?
Contacteaza-ne

ARHON ARHITECTURA

Povestea incepe cu noi

Pe primul loc sunt oamenii. Proiectam intotdeauna cu beneficiarii nostri si transformam ideile lor in realitate. Realizam proiecte in toata tara si in strainatate.

Contact

Ne puteti contacta telefonic sau pe e-mail:

Luni - Vineri 9.00 — 17.00

e-mail: arhonarhitectura@gmail.com

Bucuresti, Sector 3, B-dul. Burebista nr. 1

Scroll to Top