Casa Bedburg

 

Locuință Individuală Parter și Etaj – Cologne, Germania

Această locuință individuală se desfășoară pe trei niveluri: subsol, parter și etaj mansardat, având o suprafață construită de 120 mp și o suprafață desfășurată de 300 mp. Situată în suburbiile orașului Cologne, Germania, pe un lot de 405 mp, casa este proiectată într-un stil german modern, adaptat perfect nevoilor unei familii cu doi copii. Beneficiarii și-au dorit o locuință compactă, cu o suprafață construită redusă și o grădină mai mare, pentru a se bucura de intimitatea și confortul unei case suburbane.

Casa se integrează armonios în peisajul local, având finisaje exterioare tradiționale care reflectă arhitectura germană, cu placări din cărămidă aparentă și un acoperiș în două ape, specific locuințelor din zonă.

Sistem constructiv:

Locuința este construită din fundații și cadre din beton armat, cu zidărie din cărămidă, iar acoperișul este realizat dintr-o șarpantă de lemn. Pentru o eficiență energetică sporită și rezistență la foc, s-a aplicat o izolație termică exterioară din vată bazaltică de 10 cm.

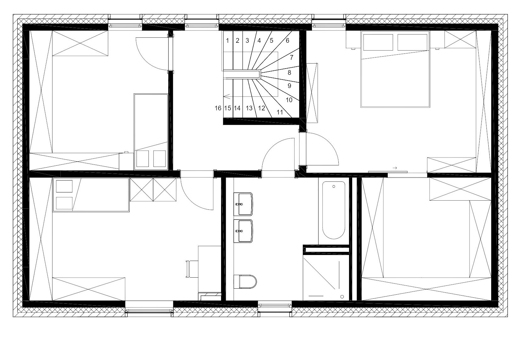
Organizare funcțională:
  • Parter: living cu bucătărie deschisă, birou și grup sanitar.
  • Etaj mansardat: trei dormitoare spațioase, o baie comună și un dressing generos.
  • Subsol: spații de depozitare, spații tehnice și o mică cramă.
  • Garaj: pentru un autoturism, cu acces separat din curte.

Cu ferestre mari și spații vitrate generoase, casa asigură o tranziție naturală între interior și exterior, oferind o conexiune directă cu natura. Această locuință modernă din Cologne este o alegere ideală pentru cei care apreciază arhitectura tradițională germană, combinată cu funcționalitatea și confortul modern, toate într-un cadru suburban liniștit.

Vrei sa lucram impreuna?
Contacteaza-ne

ARHON ARHITECTURA

Povestea incepe cu noi

Pe primul loc sunt oamenii. Proiectam intotdeauna cu beneficiarii nostri si transformam ideile lor in realitate. Realizam proiecte in toata tara si in strainatate.

Contact

Ne puteti contacta telefonic sau pe e-mail:

Luni - Vineri 9.00 — 17.00

e-mail: arhonarhitectura@gmail.com

Bucuresti, Sector 3, B-dul. Burebista nr. 1

Scroll to Top