Locuinta unifamiliala parter si mansarda Pantelimon

Casă modernă în stil nordic, 142 mp, parter și mansardă

Această casă modernă în stil nordic, cu o suprafață construită desfășurată de 142 mp, este un exemplu de locuință eficientă energetic, durabilă și sustenabilă, adaptată nevoilor unei familii moderne. Proiectul a fost realizat cu atenție la detalii și la organizarea funcțională a spațiilor, arhitecții reușind să creeze un echilibru ideal între estetică și confort, separând zona de zi de zona de noapte pe etaje distincte.

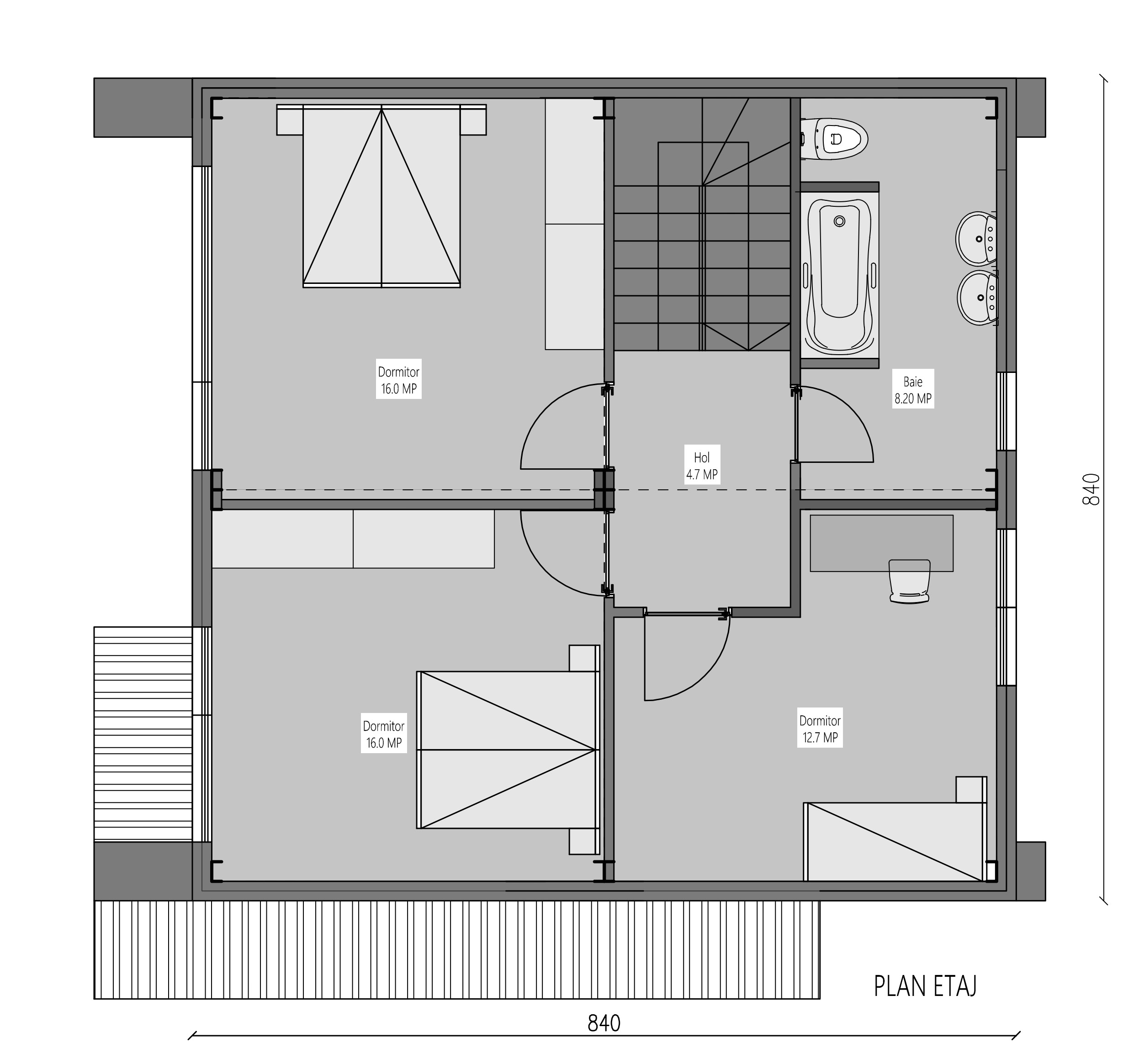
Organizare funcțională pe etaje: La parter se află zona de zi, compusă dintr-un living spațios, o bucătărie deschisă cu loc de luat masa, o baie și o cameră tehnică. Acest nivel este destinat activităților de zi, oferind spații generoase și bine delimitate, ideale pentru viața de familie și socializare. La mansardă, zona de noapte include trei dormitoare și o baie, asigurând intimitate și confort, într-un spațiu liniștit, dedicat odihnei.

Luminozitate și design exterior: Locuința beneficiază de ferestre înalte, ce permit o iluminare naturală abundentă în toate încăperile, creând o atmosferă deschisă și primitoare. Fațadele sunt finisate cu placări moderne din cărămidă aparentă și riflaje de lemn, adăugând un accent cald și natural designului scandinav minimalist. Acoperișul fără streașină, specific stilului nordic, oferă un aspect curat și contemporan, contribuind la eficiența energetică a casei.

Structură și sustenabilitate: Construcția casei se bazează pe o structură metalică durabilă, iar materialele utilizate sunt de înaltă calitate, asigurând longevitatea clădirii. Designul sustenabil al casei vizează un consum redus de energie și confort sporit, îndeplinind standardele moderne de eficiență energetică și protecția mediului.

Această casă nordică modernă de 142 mp este mai mult decât o locuință; este o investiție în confortul și durabilitatea pe termen lung, perfect adaptată stilului de viață contemporan și orientată spre un viitor sustenabil.

Vrei sa lucram impreuna?
Contacteaza-ne

ARHON ARHITECTURA

Povestea incepe cu noi

Pe primul loc sunt oamenii. Proiectam intotdeauna cu beneficiarii nostri si transformam ideile lor in realitate. Realizam proiecte in toata tara si in strainatate.

Contact

Ne puteti contacta telefonic sau pe e-mail:

Luni - Vineri 9.00 — 17.00

e-mail: arhonarhitectura@gmail.com

Bucuresti, Sector 3, B-dul. Burebista nr. 1

Scroll to Top