Hala depozitare si birouri Danubiana

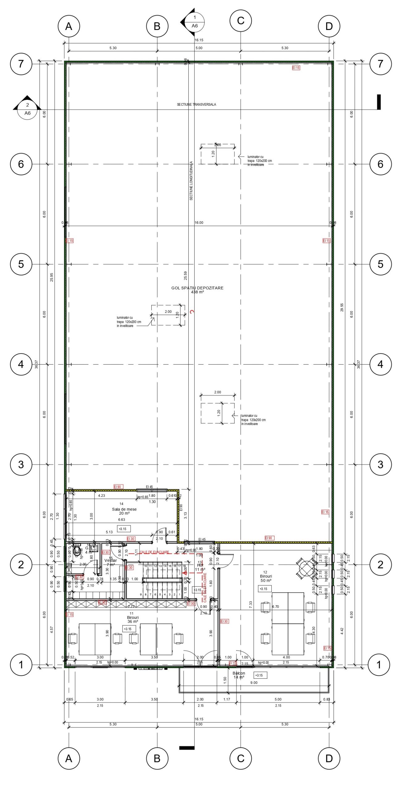
Hala cu spațiu de depozitare și birouri – Danubiana

Amplasată strategic într-o zonă industrială în plină dezvoltare, aproape de București, hala metalică din Magurele raspunde nevoilor functionale ale beneficiarilor.

Cu o suprafață construită desfășurată de 731 mp, aceasta oferă un spațiu de depozitare generos de 438 mp și un spațiu dedicat  birourilor și prezentare de 293 mp. Construcția a fost realizată de o firmă specializată în structuri metalice și hale industriale, asigurând o execuție de calitate și respectarea celor mai înalte standarde.

Vrei sa lucram impreuna?
Contacteaza-ne

ARHON ARHITECTURA

Povestea incepe cu noi

Pe primul loc sunt oamenii. Proiectam intotdeauna cu beneficiarii nostri si transformam ideile lor in realitate. Realizam proiecte in toata tara si in strainatate.

Contact

Ne puteti contacta telefonic sau pe e-mail:

Luni - Vineri 9.00 — 17.00

e-mail: arhonarhitectura@gmail.com

Bucuresti, Sector 3, B-dul. Burebista nr. 1

Scroll to Top