Hale metalice Otopeni

Trei hale metalice de depozitare, Otopeni

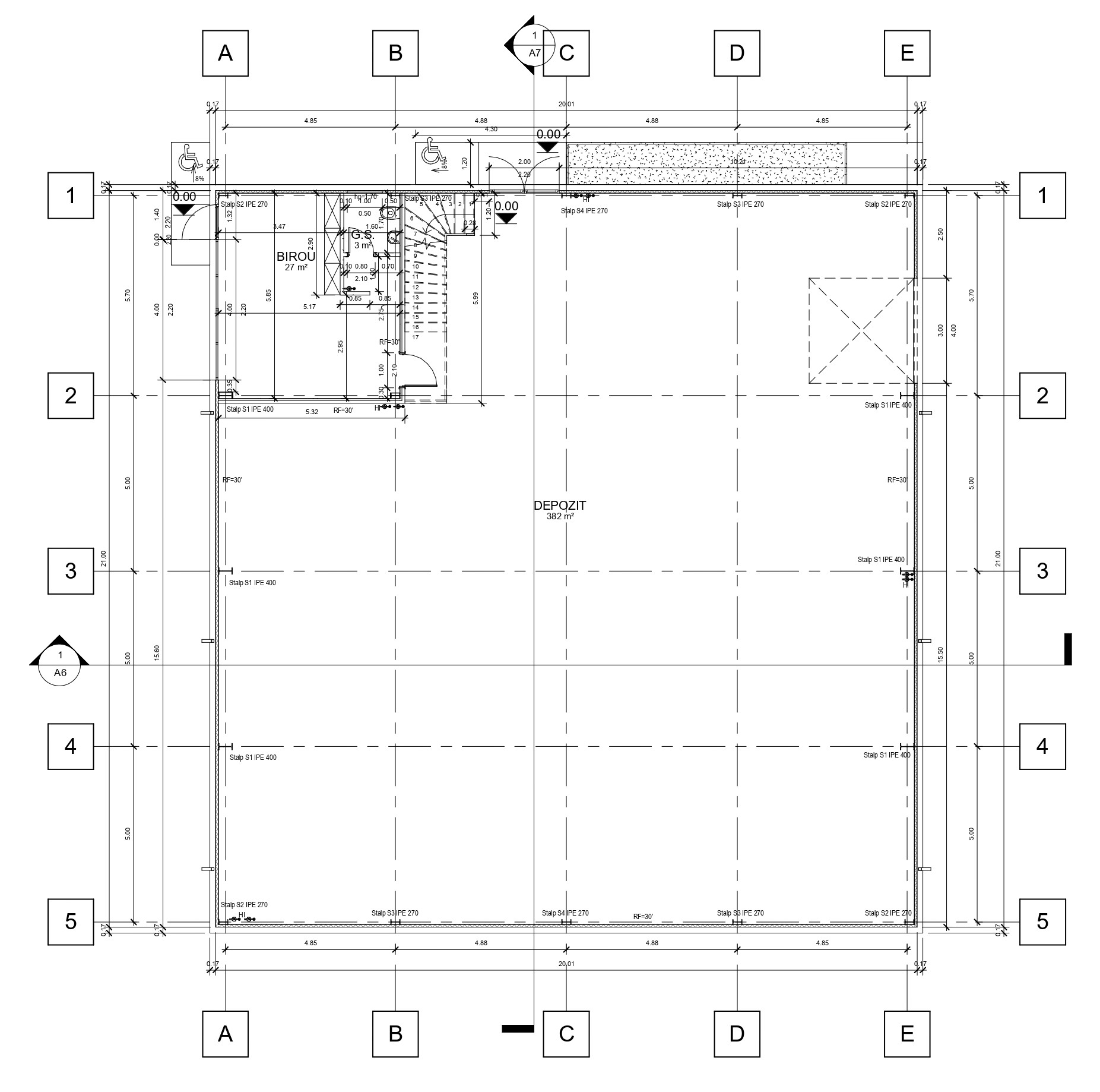
Pe un teren de 3000 mp, beneficiarul propune construcția a trei hale de depozitare identice, fiecare proiectată pentru a maximiza spațiul de stocare și a integra un mic spațiu de birouri. Fiecare hală are o suprafață desfășurată de 452 mp, din care 382 mp sunt destinați depozitării, iar restul suprafeței este alocată birourilor dispuse pe două niveluri. Aceste hale metalice asigură un echilibru optim între spațiul de lucru și cel de depozitare, fiind ideale pentru activități logistice și administrative. Proiectul este conceput pentru a satisface cerințele funcționale și estetice ale beneficiarului, oferind soluții de organizare eficientă și modernă pe terenul generos din zonă.

Vrei sa lucram impreuna?
Contacteaza-ne

ARHON ARHITECTURA

Povestea incepe cu noi

Pe primul loc sunt oamenii. Proiectam intotdeauna cu beneficiarii nostri si transformam ideile lor in realitate. Realizam proiecte in toata tara si in strainatate.

Contact

Ne puteti contacta telefonic sau pe e-mail:

Luni - Vineri 9.00 — 17.00

e-mail: arhonarhitectura@gmail.com

Bucuresti, Sector 3, B-dul. Burebista nr. 1

Scroll to Top