Hotel Spa Maramures

Renovare și modernizare hotel în Maramureș – reconversie arhitecturală și extindere complex turistic (5.500 mp)

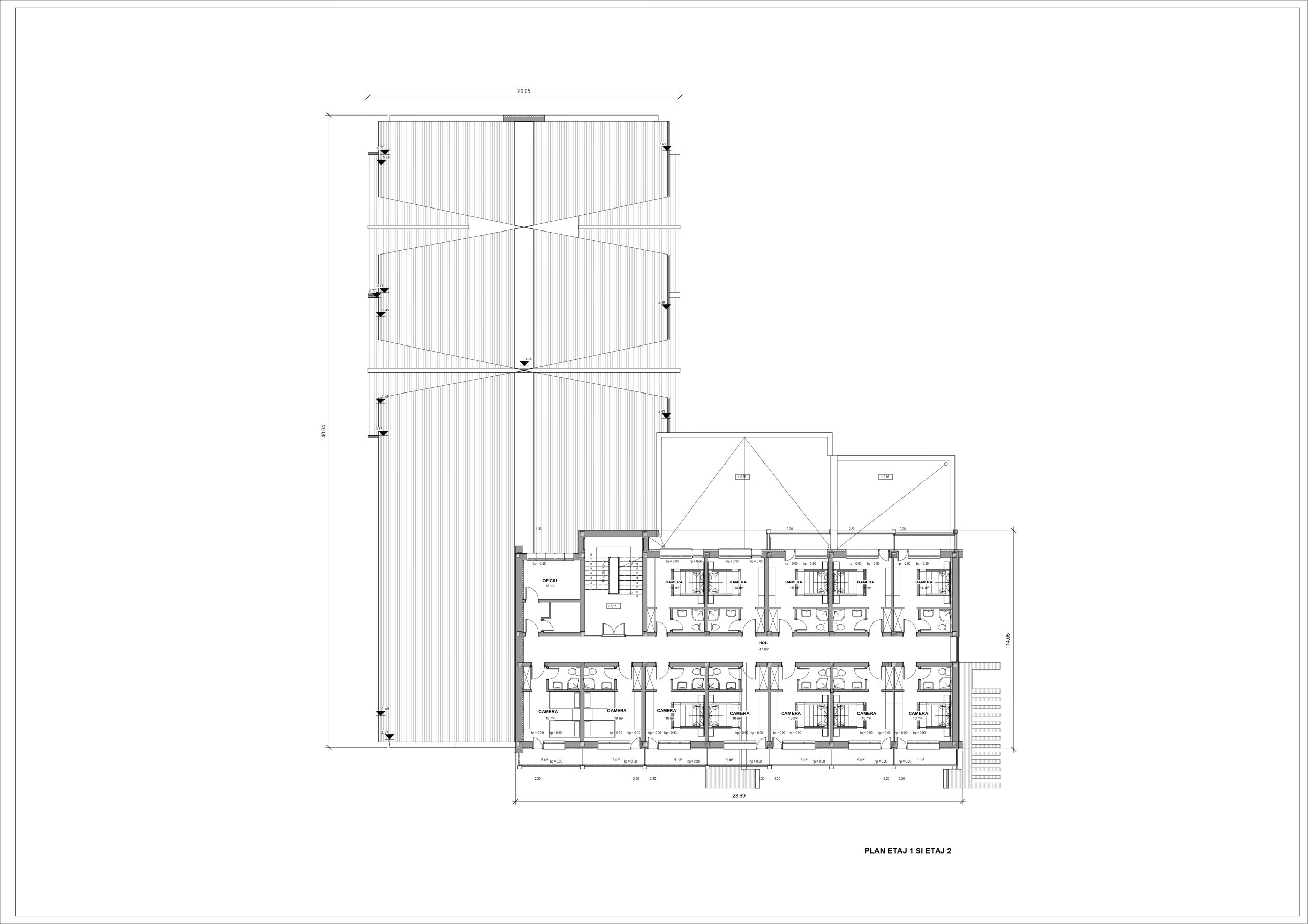
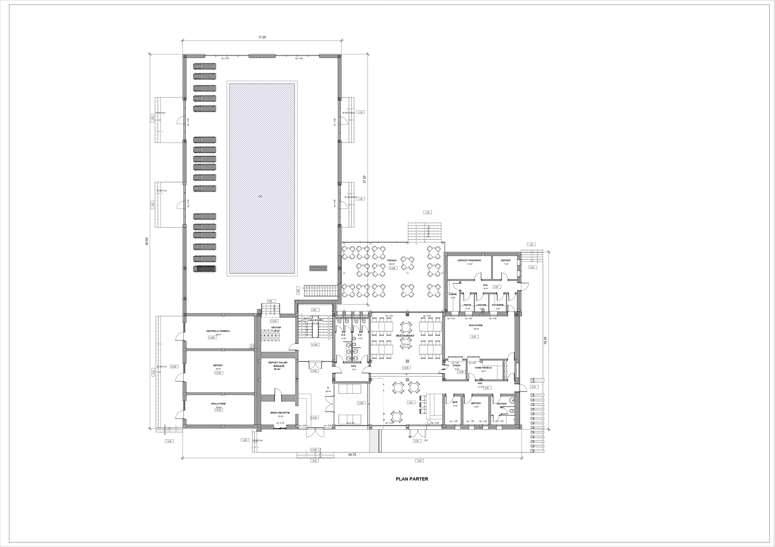
Proiectul de renovare și modernizare a unui hotel abandonat din inima munților Maramureșului a presupus o intervenție complexă de reconversie arhitecturală, cu accent pe valorificarea identității locale și integrarea soluțiilor contemporane. Echipa noastră a păstrat și recondiționat elemente valoroase ale construcției existente, inclusiv caracterul autentic al fațadelor, reutilizând materiale și ornamente tradiționale, armonizate cu finisaje moderne și durabile.

În acord cu specificul arhitecturii maramureșene, am propus un acoperiș în două ape, tip A, care marchează intrarea principală, precum și un corp nou dedicat funcțiunilor de relaxare, ce include piscină interioară și zonă spa. Pentru creșterea capacității de cazare, ansamblul a fost completat cu mai multe cabane din lemn, fiecare configurată funcțional cu living, chicinetă, unul sau două dormitoare și băi proprii, oferind un standard ridicat de confort.

Suprafața construită totală a complexului a fost extinsă la aproximativ 5.500 mp, incluzând facilități precum piscină exterioară, locuri de joacă, teren de fotbal, foișoare, terase, parcări și spații verzi amenajate. Proiectul răspunde cerințelor actuale din domeniul turismului montan, punând accent pe sustenabilitate, experiență și integrarea în peisajul natural.

Vrei sa lucram impreuna?
Contacteaza-ne

ARHON ARHITECTURA

Povestea incepe cu noi

Pe primul loc sunt oamenii. Proiectam intotdeauna cu beneficiarii nostri si transformam ideile lor in realitate. Realizam proiecte in toata tara si in strainatate.

Contact

Ne puteti contacta telefonic sau pe e-mail:

Luni - Vineri 9.00 — 17.00

e-mail: arhonarhitectura@gmail.com

Bucuresti, Sector 3, B-dul. Burebista nr. 1

Scroll to Top