Loc de joaca Otopeni

Clădire modernă parter și etaj pentru loc de joacă și organizare evenimente copii în Otopeni, lângă Aeroportul Henri Coandă

Descoperă o clădire unică în Otopeni, cu parter și etaj, ideală pentru petreceri și evenimente dedicate copiilor! Situată în apropierea Aeroportului Internațional Henri Coandă, această locație le oferă micuților și părinților o experiență specială, cu o vedere directă asupra avioanelor ce aterizează și decolează. Clădirea modernă, de culoare albă, este decorată cu elemente viu colorate, atrăgătoare pentru copii, și are o suprafață totală construită de 1057 mp.

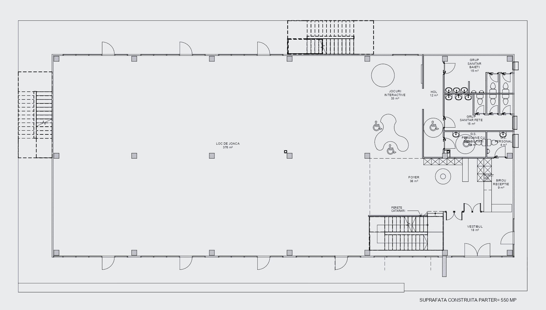
Facilități parter: Recepție, loc de joacă și perete de cățărare

La parter, vizitatorii sunt întâmpinați de o recepție spațioasă cu o garderobă special concepută pentru copii, dotată cu jocuri interactive, inclusiv pentru copiii cu nevoi speciale. În acest spațiu generos se află un loc de joacă modern, echipat cu tobogane și activități captivante pentru toate vârstele. Adiacent recepției, un perete de cățărare care se înalță pe toată înălțimea parterului le oferă copiilor șansa de a-și testa abilitățile fizice într-un mod distractiv și sigur.

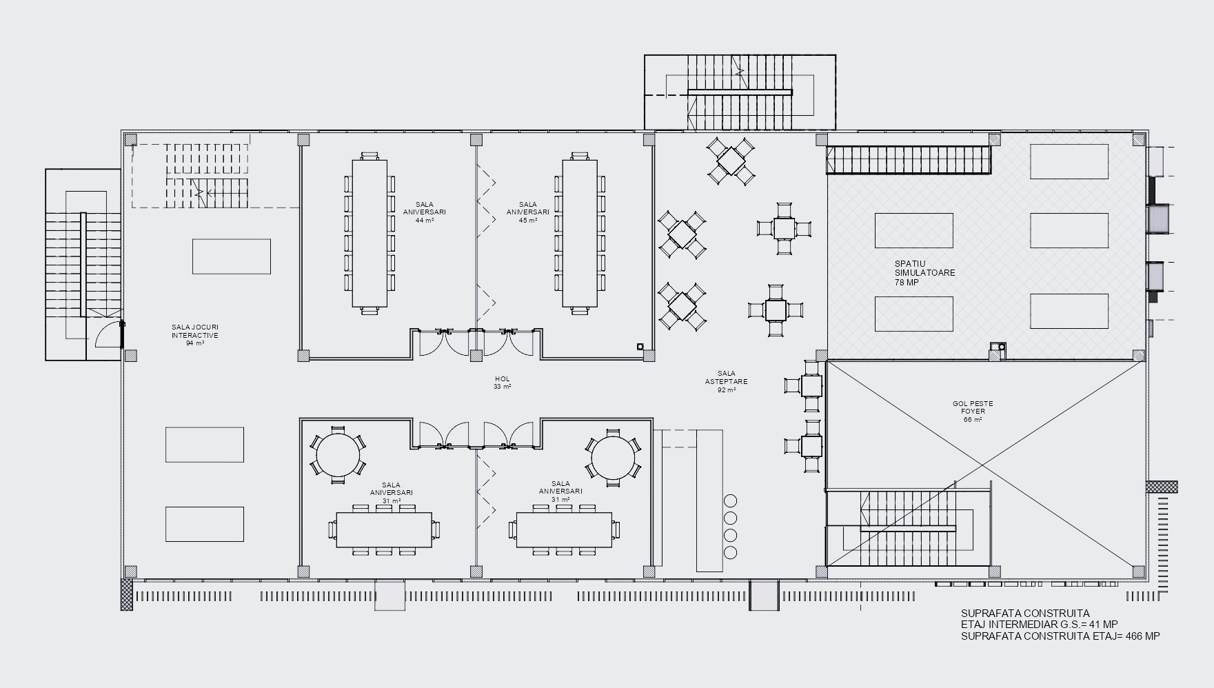
Facilități etaj: Săli de petrecere, ateliere și spații interactive

Etajul clădirii este dedicat organizării de evenimente diverse pentru copii, de la petreceri și ateliere creative până la întâlniri de grup pentru micuți. Sălile multifuncționale sunt complet echipate pentru a oferi o experiență de neuitat, iar în spațiile interactive copiii pot explora o gamă variată de jocuri și simulatoare moderne. Tot aici, o cafenea cochetă le oferă părinților un loc de relaxare unde pot savura o cafea de calitate în timp ce urmăresc activitățile copiilor.

Terasă de observație și spațiu verde în aer liber

Clădirea dispune de o terasă exterioară amenajată ca loc de observație, perfectă pentru admirarea avioanelor care trec în apropiere. În plus, la nivelul solului, în spatele clădirii, se află un spațiu verde generos, unde copiii se pot juca în aer liber, iar părinții se pot bucura de o zonă de relaxare pe o terasă deschisă.

Avantaje pentru organizarea evenimentelor

Cu vitraje ample care oferă o perspectivă spectaculoasă asupra avioanelor, această clădire din Otopeni este ideală pentru petreceri și evenimente tematice pentru copii. Amplasată strategic lângă aeroport, locația este ușor accesibilă și oferă o experiență aparte celor mici, captivându-i prin designul atractiv și facilitățile diversificate.

Vrei sa lucram impreuna?
Contacteaza-ne

ARHON ARHITECTURA

Povestea incepe cu noi

Pe primul loc sunt oamenii. Proiectam intotdeauna cu beneficiarii nostri si transformam ideile lor in realitate. Realizam proiecte in toata tara si in strainatate.

Contact

Ne puteti contacta telefonic sau pe e-mail:

Luni - Vineri 9.00 — 17.00

e-mail: arhonarhitectura@gmail.com

Bucuresti, Sector 3, B-dul. Burebista nr. 1

Scroll to Top