Locuinta Individuala Islanda

Casă Modernă pe Parter în Islanda: Eleganță Arhitecturală în Peisaj Idilic

Descoperă o locuință de vis situată în inima Islandei, cu vedere spectaculoasă către vulcanul Hekla și muntele Burfell. Această casă modernă, proiectată să se integreze armonios în peisajul natural, redefinește confortul și sustenabilitatea.

Arhitectura și integrarea cu peisajul

Casa se remarcă printr-o arhitectură contemporană, minimalistă, care împrumută din liniile și culorile naturii islandeze. Fațadele sunt realizate din materiale moderne și sustenabile, selectate pentru a rezista climei aspre din regiune, dar și pentru a fi prietenoase cu mediul. Forma simplă și eficientă a clădirii contribuie la integrarea organică în peisaj, creând o legătură subtilă între natură și locuință.

Caracteristici structurale și materiale

Structura metalică a casei este proiectată să reziste la cutremure, un aspect esențial în Islanda, unde activitatea seismică este frecventă. Ferestrele mari, dispuse strategic, permit pătrunderea luminii naturale pe tot parcursul zilei și oferă priveliști uimitoare către munte și vulcan, transformând fiecare încăpere într-un punct de belvedere.

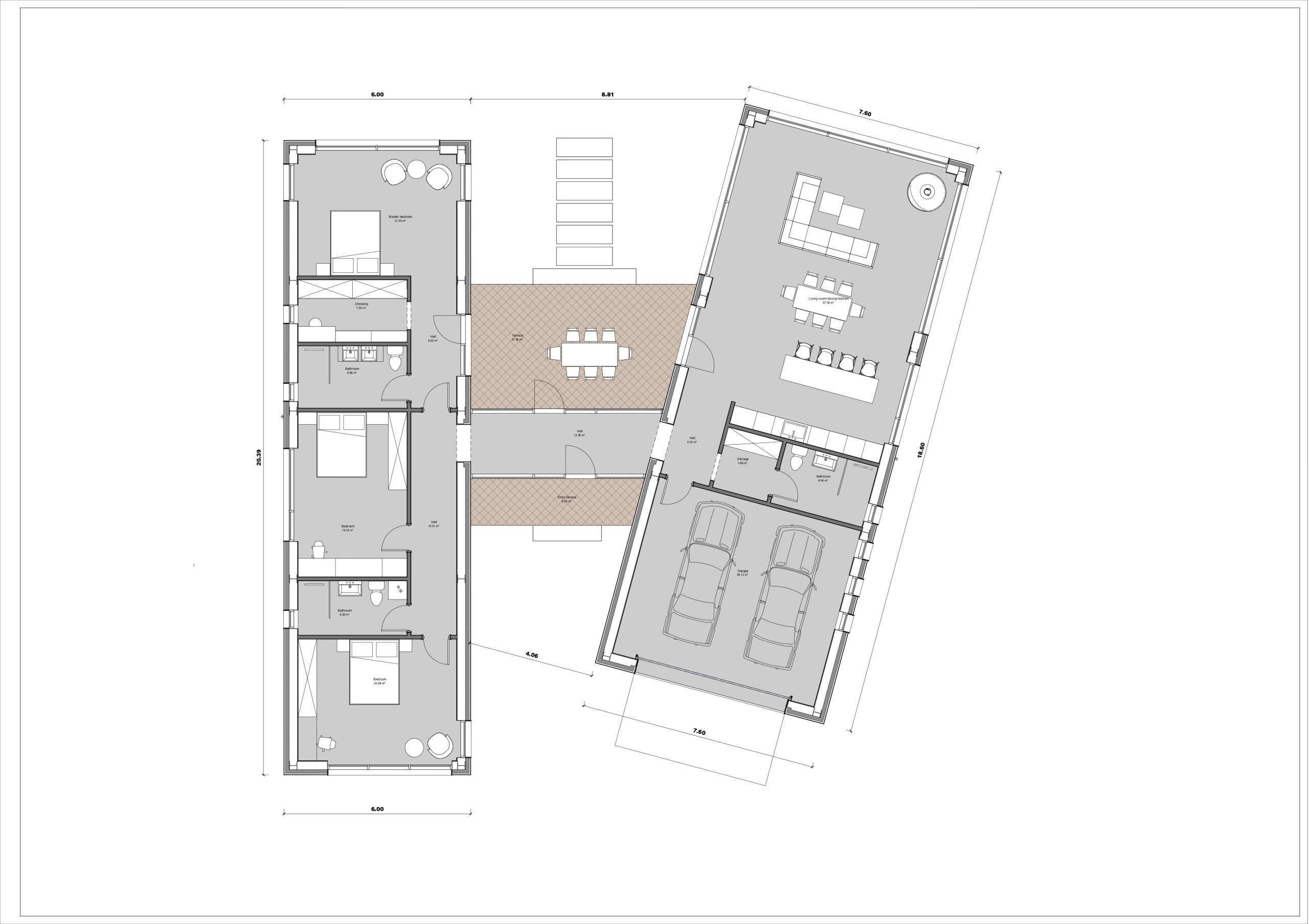
Design și planimetrie

Casa este organizată în două corpuri unite printr-un volum de sticlă, care oferă continuitate vizuală și creează o zonă de tranziție plină de lumină:

  • Corpul 1: Acesta include funcțiuni utilitare și zonele de zi, fiind format din:
    • Garaj spațios, ideal pentru protecția vehiculelor în condițiile climatice nordice.
    • Baie și dressing funcționale.
    • Bucătărie deschisă, modernă, conectată cu zona de dining.
    • Livingroom confortabil, orientat spre peisaj, perfect pentru relaxare.
  • Corpul 2: Gândit pentru odihnă și intimitate, acest corp cuprinde:
    • Două dormitoare cu vedere spre munte, deservite de o baie comună.
    • Un dormitor matrimonial cu baie proprie și dressing, oferind spațiu privat și acces direct la peisajele spectaculoase.
Sustenabilitate și eficiență energetică

Materialele utilizate în construcție au fost selectate pentru a reduce amprenta de carbon și pentru a maximiza eficiența energetică. Izolația performantă și designul adaptat climei nordice contribuie la menținerea unei temperaturi confortabile în interior pe tot parcursul anului, cu un consum minim de energie.

Oază de liniște cu priveliști de neuitat

Încăperile sunt orientate strategic, oferind o panoramă unică asupra vulcanului Hekla și muntelui Burfell. Amplasarea în acest peisaj idilic creează un sentiment de izolare plăcută, fără a compromite confortul modern.

Această casă parter reprezintă echilibrul perfect între estetică modernă, sustenabilitate și conexiunea cu natura. O locuință ideală pentru cei care visează la un stil de viață liniștit, în armonie cu peisajele spectaculoase ale Islandei.

Vrei sa lucram impreuna?
Contacteaza-ne

ARHON ARHITECTURA

Povestea incepe cu noi

Pe primul loc sunt oamenii. Proiectam intotdeauna cu beneficiarii nostri si transformam ideile lor in realitate. Realizam proiecte in toata tara si in strainatate.

Contact

Ne puteti contacta telefonic sau pe e-mail:

Luni - Vineri 9.00 — 17.00

e-mail: arhonarhitectura@gmail.com

Bucuresti, Sector 3, B-dul. Burebista nr. 1

Scroll to Top